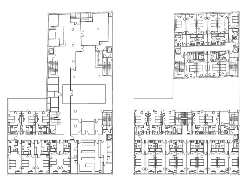
Estudi de Transformació d’ Edifici d’Oficines a Hotel
C/ Bergnes, Barcelona
Octubre 1998
Superfície: - m2
Pressupost: -
Client Final: -
Tornar a la llista de projectes
©2010 Fermín Fraguas todos los derechos reservados .