Firm
Proyectos
News
Recognition

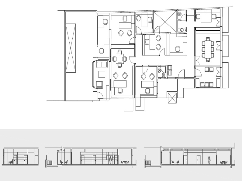
Office Renovation Project



C/ Bruc 59, Barcelona
January 2004
Surface: 170,00 m2
Budget: 105.000 euros
Final Client: Jorge Falip